Перейти к основному содержанию

Здание на 2-й Брестской

Москва , 2-я Брестская улица, 9 стр. 1

metro Маяковская / 6 мин. пешком

6 этажей

3844 м²

Предоставляем юр. адрес

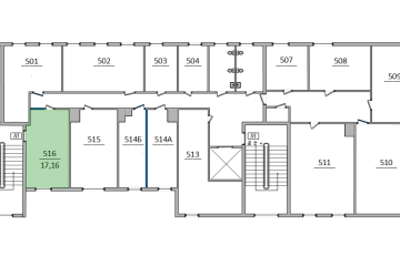
Доступные для аренды помещения:

Назначение зданияБизнес центр

Год постройки1935

ОхранаНа входе и видеонаблюдение

Парковка

Огороженная территорияНет

ЛифтДа

Первая линияНет

Налоговая инспекция10

Городской телефон

Интернет

Высота потолков

Расположение комнаткоридорная система

Санузелобщий на этаже

  

55.770168, 37.589988