Перейти к основному содержанию
Боты для агентов:

Здание на Преображенской площади

Москва , Преображенская площадь, 7Ас1

metro Преображенская площадь / 3 мин. пешком

Бизнес центр

6 этажей

6045 м²

Предоставляем юр. адрес

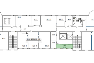
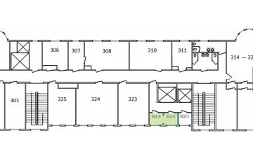
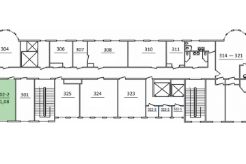
Доступные для аренды помещения:

Назначение здания

Год постройки1998

Охранаконтрольно-пропускная система

Парковка

Огороженная территорияНет

ЛифтДа

Первая линияДа

Налоговая инспекция18

Городской телефонпредоставляется

Интернетпредоставляется

Высота потолков

Расположение комнат

Санузел

БЦ на Преображенской площади располагается в 3-х минутах ходьбы от станции метро Преображенская площадь.

Первая линия домов. 5-ти этажное офисное здание и высокая мансарда с эркерными окнами от пола до потолка.

Внутренняя отделка выполнена из качественных материалов, пол и лестницы из черного мрамора.

Презентабельная входная группа. Здание оснащено лифтами. Первый этаж занимает одно из крупнейших отделений Сбербанка.

55.795489526353, 37.708898167951