Перейти к основному содержанию
Боты для агентов:
Объект сдан

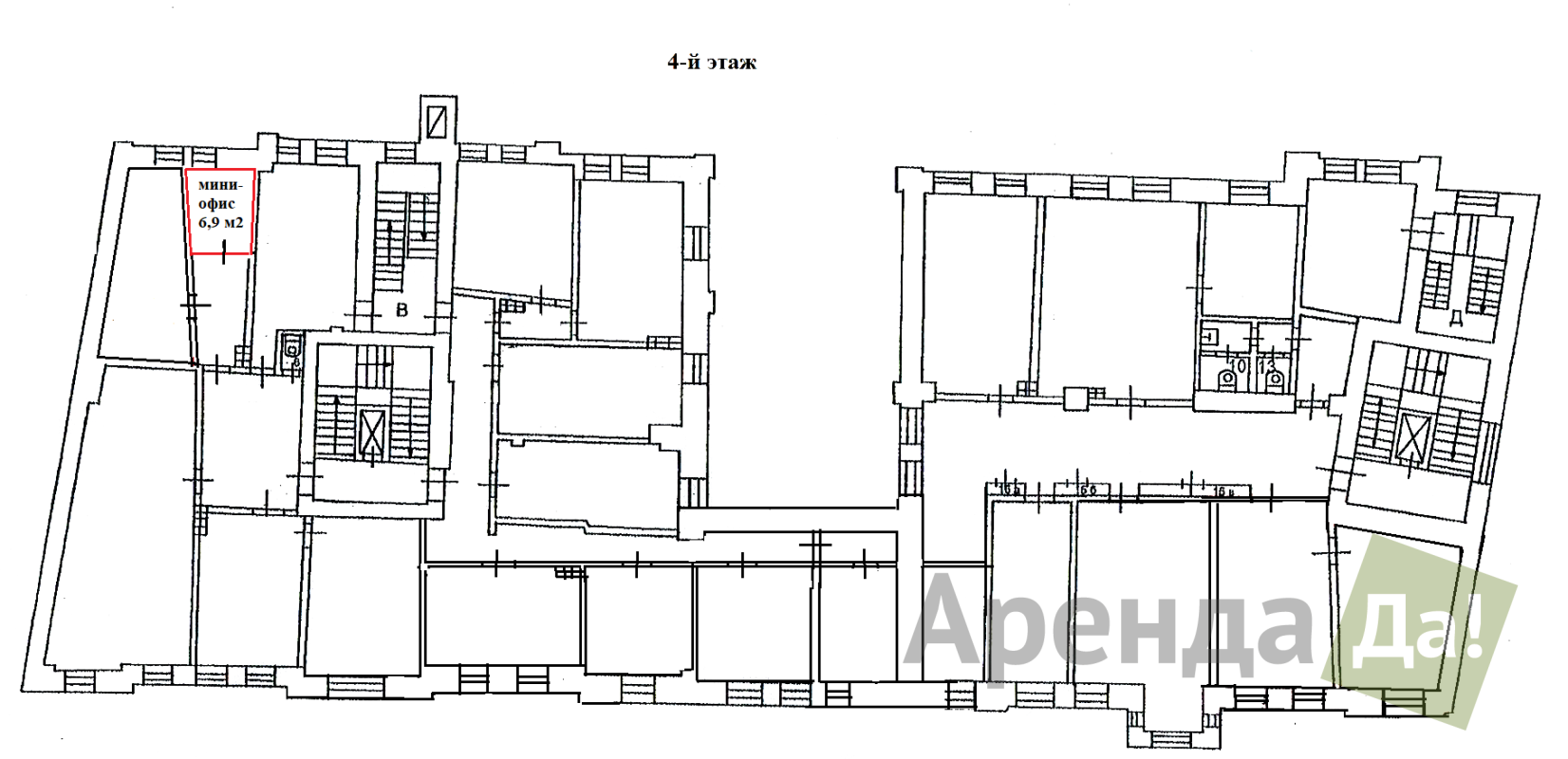
Офис на Новослободской 6 м2

Москва, улица Новослободская. д.26с1

metro Менделеевская / 2 мин. пешком

metro Новослободская / 4 мин. пешком

6 м²

15 000 ₽/мес.

Этаж 4

Высота потолков 4 м

Количество окон 2

Охрана на входе и видеонаблюдение

Лифт Да

Состояние хорошее

Расположение комнат коридорная система

Санузел общий на этаже

Подсобные помещения Нет

Возможна перепланировка Нет

Период действия договора Краткосрочный

Арендные каникулы По условиям договора

Налоговая инспекция 7

Собственник коммерческой недвижимости - Компания "Арендада" предлагает в аренду офис.

Офис находится на 4 этаже пятиэтажного офисного здания. Помещение после ремонта.

Наличие интернета в офисе. 
Возможна аренда машиноместа .

 

Арендная ставка 15 000 рублей в месяц. НДС включен.

Прямая аренда от собственника с предоставлением юридического адреса.

Возможна посуточная аренда, краткосрочная аренда и долгосрочная аренда.

 

Информация о бизнес-центре:

БЦ расположен рядом с кольцевой станцией метро Новослободская и напротив станции метро Менделеевская.

Вокруг находятся крупнейшие банки, торговые центры, офисы различных компаний, государственные учреждения. Торгово-офисное здание построено в начале 20-го века, внутри современный ремонт, новые лифты.

55.7831884, 37.597982