Перейти к основному содержанию
Боты для агентов:
Объект сдан

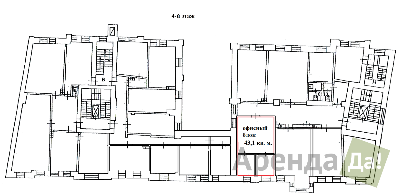
Офис на Новослободской 43,13 м2

Москва, улица Новослободская. д.26с1

metro Менделеевская / 2 мин. пешком

metro Новослободская / 4 мин. пешком

43,1 м²

87 500 ₽/мес.

Этаж 4

Высота потолков 4 м

Количество окон 4

Класс офиса B

Юридический адрес Предоставляется

Охрана на входе и видеонаблюдение

Лифт Да

Состояние хорошее

Расположение комнат коридорная система

Санузел общий на этаже

Подсобные помещения Нет

Возможна перепланировка Нет

Период действия договора Краткосрочный

Арендные каникулы По условиям договора

Налоговая инспекция 7

Сдаем офис (офисный блок три команаты: одна большая и две поменьше) в оживленной деловой зоне, рядом с кольцевой станцией метро Новослободская и напротив станции метро Менделеевская. Вокруг находятся крупнейшие банки, торговые центры, офисы различных компаний, государственные учреждения. Торгово-офисное здание построено в начале 20-го века, внутри современный ремонт, новые лифты. Офисное помещение просторное, светлое, чистое. Окна кабинетов выходят на улицу. Расположение компании в таком месте будет способствовать развитию вашего бизнеса и утверждению вашего статуса!

Вход в здание через охрану при наличии паспорта. Охрана обеспечивает безопасность, но не препятствует доступу в помещение арендаторам и клиентам.

Прямая аренда от собственника с предоставлением юридического адреса.

55.7831884, 37.597982