Перейти к основному содержанию
Боты для агентов:
Объект сдан

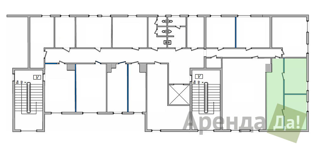
Офисный блок 41,4 кв. м. на 2-й Брестской

Москва, улица 2-я Брестская. 9 стр. 1

metro Маяковская / 6 мин. пешком

41,4 м²

79 000 ₽/мес.

Этаж 6

Количество окон 2

Класс офиса B

Юридический адрес Предоставляется

Кондиционер Да

Охрана На входе и видеонаблюдение

Лифт Да

Состояние отличное

Расположение комнат коридорная система

Санузел общий на этаже

Городской телефон предоставляется

Подсобные помещения Нет

Возможна перепланировка Нет

Период действия договора Долгосрочный

Арендные каникулы По условиям договора

Коммунальные платежи включены в счет аренды

Налоговая инспекция 10

Арендная ставка на первые 3 месяца аренды: 79 000 руб. в месяц, далее 84 000 рублей в месяц.

 

Собственник коммерческой недвижимости - Компания "АрендаДа!" предлагает в аренду офисный блок 41,4 кв. м. в БЦ Маяк.

Офисный бок состоит из 2 отдельных кабинетов и зоны ожидания для клиентов.

Прямая аренда от собственника с предоставлением юридического адреса.

 

Информация о бизнес-центре:

БЦ расположен на 2-й Брестской улице в пяти минутах ходьбы от станции метро Маяковская, рядом с Тверской и Малой Бронной улицами. 
В ближайшем окружении гостиница "Пекин", посольство Чехии, Москомархитектура, музеи, кафе, рестораны и т.д.

Помимо этого, здание снабжено всеми необходимыми коммуникациями, пожарной сигнализацией, проведен интернет, телефония, видеонаблюдение. Возможна аренда машиноместа.

На первом этаже расположена столовая с бизнес-ланчами.

Отличная транспортная доступность. От метро «Маяковская» 400 метров.

 

55.770168, 37.589988