Перейти к основному содержанию
Боты для агентов:
Объект сдан

Торговое помещение 150 кв. м. на ул. Маросейка

Москва, улица Маросейка. 15

metro Китай-город / 3 мин. пешком

150 м²

Этажи 1

Высота потолков 3 м

Количество окон 2

Электрическая мощность 50

Юридический адрес Предоставляется

Первая линия Да

Состояние отличное

Подсобные помещения Да

Возможна перепланировка Да

Период действия договора Долгосрочный

Арендные каникулы Предоставляются

Коммунальные платежи оплачиваются отдельно

Тип вентиляции Приточно-вытяжная

Расположение входа С улицы

Количество входов с улицы 1

Количество входов со двора 1

Количество санузлов 3

Разгрузочная зона Да

Назначение помещения

Аптека, Арендный бизнес, Банк, Бар, Букмекерская контора, Зоомагазин, Кафе/ресторан, Коммерция, Магазин, Общепит, Пекарня, Пиццерия, Продукты, Пункт выдачи, Ресторан, Салон красоты, Салон связи, Свободного назначения, Стрит ритейл, Супермаркет, Торговая площадь, Торговля, Торговое, Фастфуд

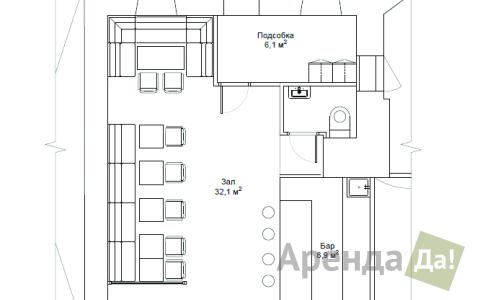
Торговое помещение оборудовано и готово к эксплуатации в сфере общепита.

Возможно получение алкогольной лицензии.

Собственник предлагает торговое помещение общей площадью 150 кв. м. на улице Маросейка с витринными окнами на 1-й линии домов, в минуте ходьбы от м. Китай-город. Помещение расположено на 1-м этаже.

Высокие потолки, большие витринные окна, возможно размещение летней веранды, есть место для размещения наружной рекламы. 

Электрическая мощность: 50 кВт.

Помещение оборудовано приточно-вытяжной вентиляцией.

Нежилое здание позволяет арендатору работать в режиме 24/7.

Возможно размещение нескольких концепций.

Улица Маросейка входит в пятерку самых популярных стрит-ритейл коридоров Москвы.

Арендная плата:  950 000 рублей в месяц.

Коммунальные услуги и электроэнергия оплачиваются отдельно.

Упрощенная система налогообложения.

Долгосрочная аренда напрямую от собственника от 3-х лет.

 

Подойдет для :

Аптека, Банк, Бар, Зоомагазин, Кафе/ресторан, Кофейня, Магазин, Общепит, Пекарня, Пиццерия, Продукты, Ресторан, Салон красоты, Салон связи, Свободного назначения, Стрит ритейл, Супермаркет, Фастфуд.

55.757892, 37.6368876

Похожие объекты