Перейти к основному содержанию
Боты для агентов:
Объект сдан

Торговое помещение на Новослободской

Москва, улица Новослободская. д.26с1

metro Менделеевская / 2 мин. пешком

metro Новослободская / 4 мин. пешком

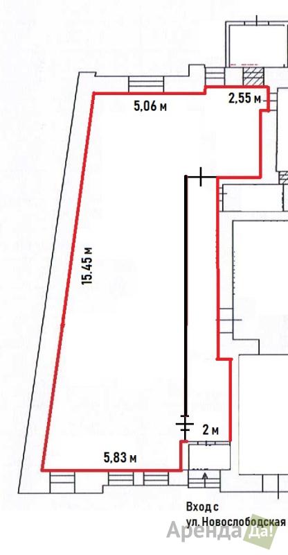
117,1 м²

Этажи 1

Высота потолков 3 м

Количество окон 3

Электрическая мощность 60

Охрана на входе и видеонаблюдение

Лифт Да

Первая линия Да

Состояние хорошее

Подсобные помещения Да

Возможна перепланировка Нет

Период действия договора Долгосрочный

Арендные каникулы По условиям договора

Тип вентиляции Приточно-вытяжная

Количество входов с улицы 1

Количество входов со двора 1

Разгрузочная зона Да

Налоговая инспекция 7

Назначение помещения

Spa салон, Аптека, Банк, Бар, Букмекерская контора, Зоомагазин, Кафе/ресторан, Коммерция, Кулинария, Магазин, Общепит, Пекарня, Пиццерия, Продукты, Ресторан, Салон красоты, Салон связи, Свободного назначения, Стрит ритейл, Супермаркет, Торговая площадь, Торговля, Торговое, Фастфуд

Торговое помещение оборудовано и готово к эксплуатации в сфере общепита.

Возможно получение алкогольной лицензии.

Возможна краткосрочная и долгосрочная аренда помещения.

Электрическая мощность: 60 кВт

Собственник сдает в аренду торговое помещение на Новослободской, одной из самых проходных деловых улиц Москвы.

Помещение находится в административном здании, возможна работа 24/7.

Оказываем поддержку в получении необходимых лицензий. По договоренности можем провести ремонтно-отделочные работы, поможем с организацией бизнеса, разработкой концепции с учетом специфики месторасположения, делового окружения и конкурентов.

Насыщенный пешеходный трафик, связанный с близким входом в метро Менделеевская, обеспечивает торговые предприятия постоянным притоком посетителей.

Торговое помещение на Новослободской 26, находится в непосредственной близости торговых и бизнес-центров с многочисленными посетителями – потенциальными покупателями.

Преимуществом данного помещение является возможность получения клиентов как с 1-й линии домов, так и со стороны новых жилых комплексов "Реномэ" и «Мезонруж»

Торговый зал 117 м2 правильной прямоугольной формы с окнами, выходящими на улицу. Идеально подходит для размещения общепита, но не только.

Подойдет для :

Аптека, Банк, Бар, Зоомагазин, Кафе/ресторан, Кофейня, Магазин, Общепит, Пекарня, Пиццерия, Продукты, Ресторан, Салон красоты, Салон связи, Свободного назначения, Стрит ритейл, Супермаркет, Фастфуд.

55.7831884, 37.597982

Похожие объекты