Перейти к основному содержанию
Боты для агентов:
Объект сдан

Торговое помещение на Новослободской

Москва, улица Новослободская. д.26с1

metro Менделеевская / 2 мин. пешком

metro Новослободская / 4 мин. пешком

252,6 м²

Этажи 1, -1

Высота потолков 3 м

Количество окон 3

Электрическая мощность 120

Охрана на входе и видеонаблюдение

Лифт Да

Первая линия Да

Состояние хорошее

Подсобные помещения Да

Возможна перепланировка Да

Период действия договора Долгосрочный

Арендные каникулы По условиям договора

Тип вентиляции Приточно-вытяжная

Количество входов с улицы 2

Количество входов со двора 1

Разгрузочная зона Да

Налоговая инспекция 7

Назначение помещения

Аптека, Магазин, Общепит, Салон красоты, Салон связи, Торговая площадь

Возможно получение алкогольной лицензии.

Собственник сдает в аренду торговое помещение на Новослободской, одной из самых проходных деловых улиц Москвы.

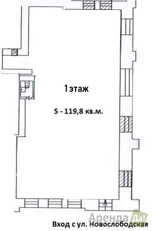
Торговое помещение располагается на 1-м этаже- 119,8 кв. м. и -1 этаже- 132,8 кв. м.

Здание расположено на первой линии улицы Новослободская на пешеходном потоке станций метро Новослободская (5 минут пешком) и Менделеевская (1 минута пешком).

Идеально подходит для размещения
винного бара/ресторана/ гастро-бара, бургерной, ресторана азиатской кухни, пиццерии, алкомаркет, кальянной, студии красоты, салона одежды/обуви, сувениров, антиквариата.

Два входа с фасада здания рядом с проездом на территорию ЖК «Реномэ»

55.7831884, 37.597982

Похожие объекты