Перейти к основному содержанию
Боты для агентов:
Объект сдан

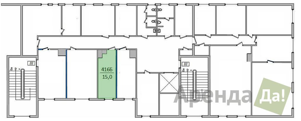
Офис 15 кв. м. на 2-й Брестской

Москва, улица 2-я Брестская. 9 стр. 1

metro Маяковская / 6 мин. пешком

15 м²

31 250 ₽/мес.

Этаж 4

Количество окон 1

Класс офиса B

Юридический адрес Предоставляется

Кондиционер Да

Охрана На входе и видеонаблюдение

Лифт Да

Состояние отличное

Расположение комнат коридорная система

Санузел общий на этаже

Городской телефон предоставляется

Подсобные помещения Нет

Возможна перепланировка Нет

Период действия договора Долгосрочный

Арендные каникулы По условиям договора

Коммунальные платежи включены в счет аренды

Налоговая инспекция 10

Собственник коммерческой недвижимости - Компания "Арендада" предлагает в аренду офис.

Помещение 15 м2. в БЦ Маяк.

Офис находится на 4 этаже шестиэтажного офисного здания. Помещение после ремонта.

Наличие интернета в офисе. 
Возможна аренды машиноместа .

 

Арендная ставка 31 250 рублей в месяц. НДС включен.

Прямая аренда от собственника с предоставлением юридического адреса.

Возможна посуточная аренда, краткосрочная аренда и долгосрочная аренда.

 

Информация о бизнес-центре:

БЦ расположен на 2-й Брестской улице в пяти минутах ходьбы от станции метро Маяковская, рядом с Тверской и Малой Бронной улицами. 
В ближайшем окружении гостиница "Пекин", посольство Чехии, Москомархитектура, музеи, кафе, рестораны и т.д.

55.770168, 37.589988