- Главная
- Аренда офисов
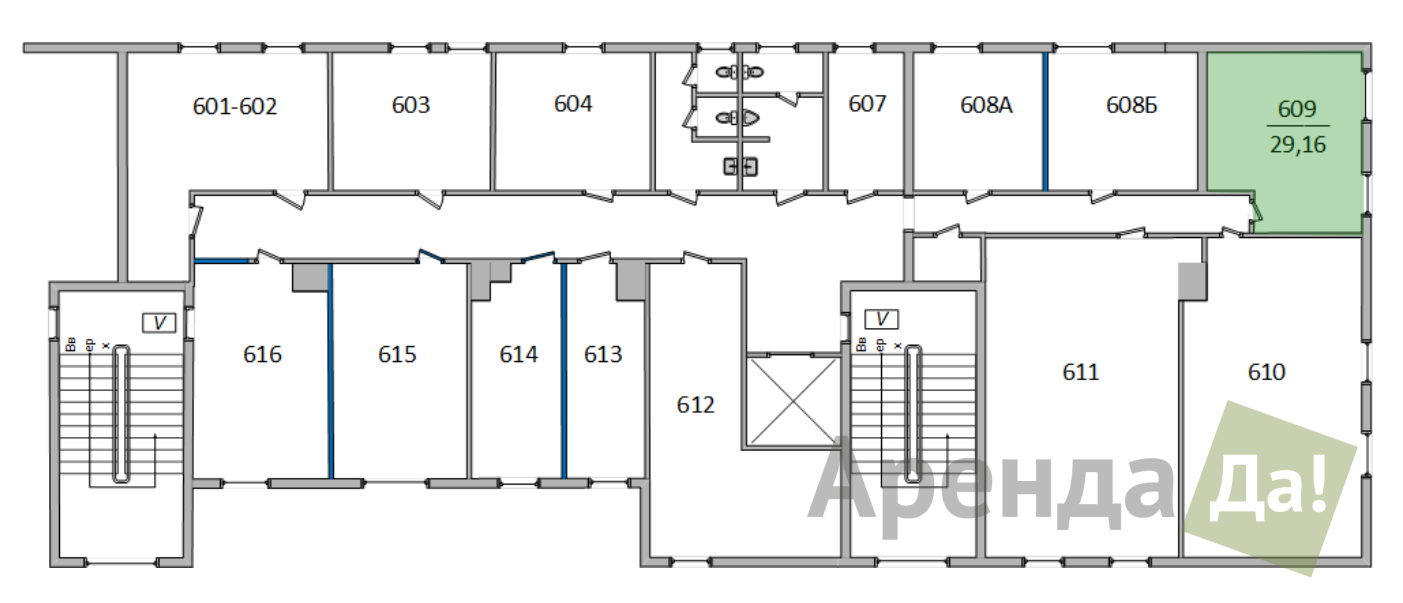
- Арендные каникулы: 2 недели бесплатно! Офис 29,16 кв. м. на 2-й Брестской
Арендные каникулы: 2 недели бесплатно! Офис 29,16 кв. м. на 2-й Брестской
Москва, улица 2-я Брестская. 9 стр. 1
Маяковская
/ 6 мин. пешком
29,2 м²
93 000 ₽/мес.
Этаж 6
Количество окон 2
Класс офиса B
Юридический адрес Предоставляется
Кондиционер Да
Охрана На входе и видеонаблюдение
Лифт Да
Состояние отличное
Расположение комнат коридорная система
Санузел общий на этаже
Подсобные помещения Нет
Возможна перепланировка Нет
Арендные каникулы По условиям договора
Коммунальные платежи включены в счет аренды
Налоговая инспекция 10
Даем арендные каникулы: 2 недели для арендатора бесплатно!
Собственник коммерческой недвижимости - Компания "АрендаДа!" предлагает в аренду офис 29,16 м2 в БЦ Маяк. От метро «Маяковская» 400 метров!
Офис на 6-м этаже, в здании есть лифт.
Кондиционер.
Арендная ставка: 93 000 руб. в месяц. НДС включен.
Прямая аренда от собственника с предоставлением юридического адреса.
Здание снабжено всеми необходимыми коммуникациями, пожарной сигнализацией, проведен интернет, телефония, видеонаблюдение.
Возможна аренда машиномест.
Информация о бизнес-центре:
БЦ расположен на 2-й Брестской улице в пяти минутах ходьбы от станции метро Маяковская, рядом с Тверской и Малой Бронной улицами.
В ближайшем окружении гостиница "Пекин", посольство Чехии, Москомархитектура, музеи, кафе, рестораны и т.д.
Здание снабжено всеми необходимыми коммуникациями, пожарной сигнализацией, проведен интернет, телефония, видеонаблюдение.
На первом этаже БЦ расположена столовая с бизнес-ланчами.
Новослободская
Китай-город