Перейти к основному содержанию
Боты для агентов:
Объект сдан

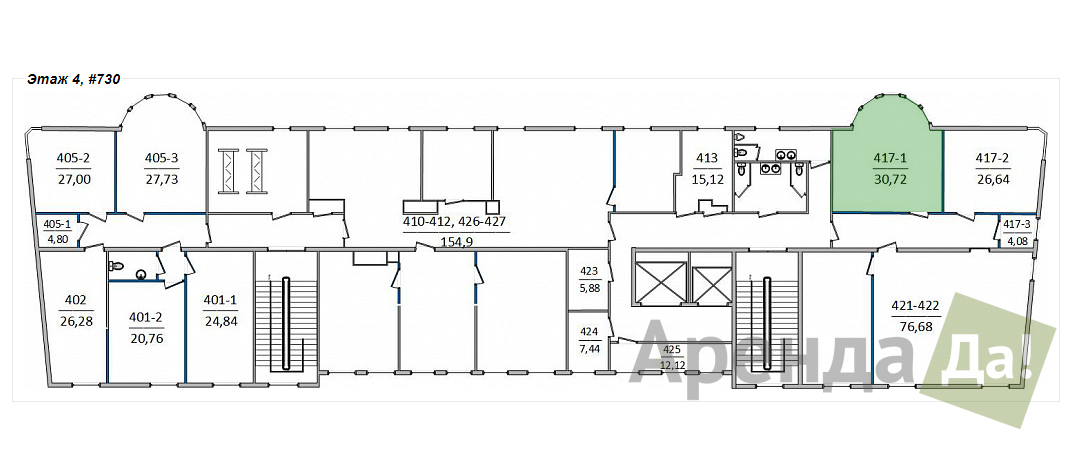
Офис 30,72 кв. м. на Преображенской площади

Москва, площадь Преображенская. 7Ас1

metro Преображенская площадь / 3 мин. пешком

30,7 м²

50 000 ₽/мес.

Этаж 4

Количество окон 1

Класс офиса B+

Юридический адрес Предоставляется

Кондиционер Да

Охрана контрольно-пропускная система

Лифт Да

Состояние отличное

Расположение комнат коридорная система

Городской телефон предоставляется

Подсобные помещения Нет

Возможна перепланировка Нет

Период действия договора Долгосрочный

Арендные каникулы По условиям договора

Коммунальные платежи включены в счет аренды

Налоговая инспекция 18

Собственник предлагает в аренду офис 30,72 м2. в БЦ Преображенский 7. 

Офис находится на 4 этаже шестиэтажного офисного здания. Помещение после ремонта.

Наличие интернета в офисе. 
Возможна аренды машиноместа .

 

Арендная ставка 51 500 рублей в месяц. НДС включен.

Прямая аренда от собственника с предоставлением юридического адреса.

Возможна краткосрочная и долгосрочная аренда.

 

Информация о бизнес-центре:

БЦ располагается в 3-х минутах ходьбы от станции метро Преображенская площадь.

Первая линия домов.

Внутренняя отделка выполнена из качественных материалов, пол и лестницы из черного мрамора. Презентабельная входная группа.

Здание оснащено лифтами. Целевой пешеходный трафик крупнейшего отделения Сбербанка, который находится на 1-м этаже.

55.795489526353, 37.708898167951